cod. 155 – €. 70.000

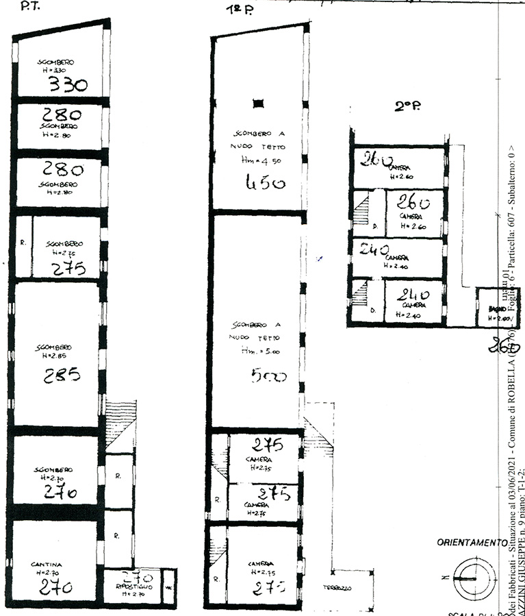
Immerso nel verde delle colline del Monferrato con splendida vista panoramica proponiamo caratteristico cascinale piemontese da ristrutturare con giardino privato di c.ca 200 mq., più nel dettaglio composto da due unità abitative distinte volendo collegabili fra loro in quanto adiacenti; al piano terra troviamo 7 ampi locali di sgombero, 2 cantine, 3 ripostigli, cucina e 2 camere; salendo al p. primo con accesso da scala interna in muratura troviamo: 4 camere, 4 locali di sgombero di cui in parte a nudo tetto, terrazzo e balcone con affaccio verso il cortile; al p. secondo sempre raggiungibile con scala interna troviamo: 4 camere, bagno e balcone (mq. tot. complessivi 780.ca). Fronte casa oltre il cortile completa la proprietà la tettoia anch'essa di generosa metratura. Volendo si possono acquistare separatamente le due unità abitative al prezzo di €. 45.000 ed €. 33.000 (vedi planimetrie allegate). Classe energetica in fase di definizione.



































