cod. 025 – €. 119.000, volendo con Mutuo totale.

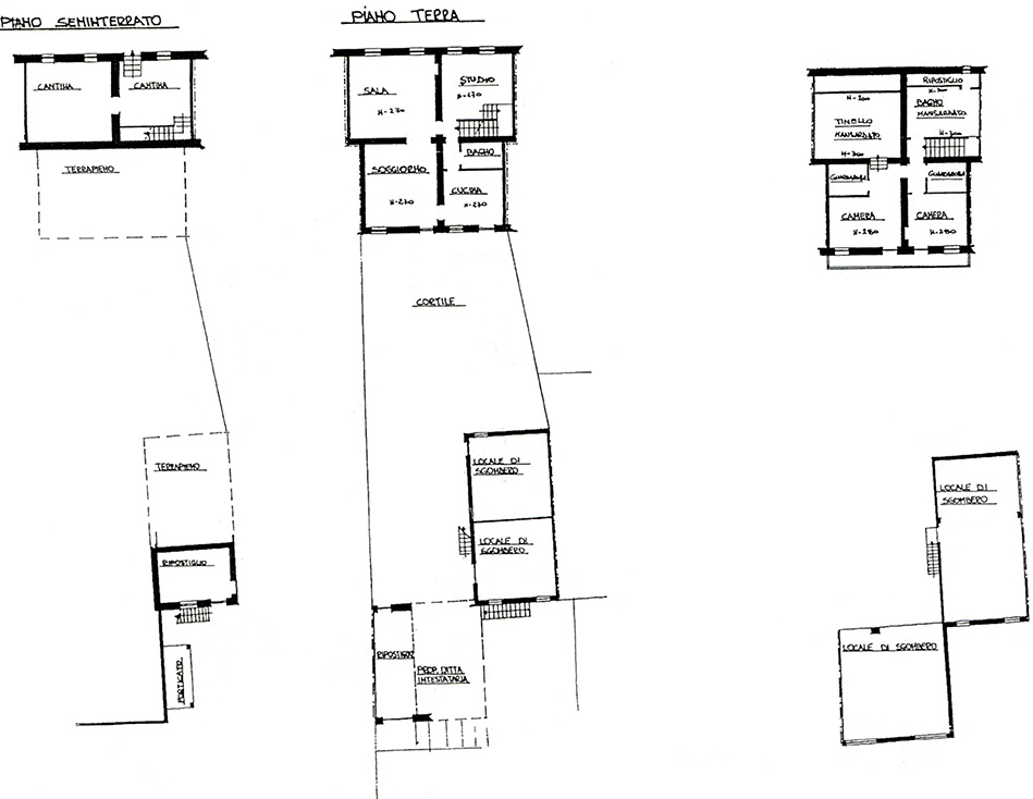
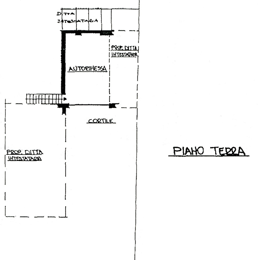
Proponiamo in splendida zona collinare con vista panoramica sul Monferrato tipica abitazione piemontese immediatamente abitabile con cortile e giardino privati di circa 500 mq., più nel dettaglio composta da parte abitativa con al piano terra zona giorno di: ingresso living su soggiorno con camino, cucina abitabile, salone con caratteristiche volte e ulteriore camino, studio e bagno con doccia; salendo al piano primo con accesso da scala interna abbiamo la zona notte con 3 camere di cui 2 dotate di cabina armadio, il 2^ bagno e il balcone con affaccio sul cortile; scendendo al piano seminterrato troviamo 2 ampi locali cantina (mq. tot. 180). Fronte casa oltre il cortile si sviluppano i vari locali di sgombero uso tavernetta e laboratorio oltre che l'ampia autorimessa soppalcata con vani uso ripostiglio (300 mq. circa). il riscaldamento dell'abitazione è autonomo con caldaia a metano. Classe energetica in fase di definizione.






































