cod. 014 – €. 38.000, volendo con rate pari ad un affitto.

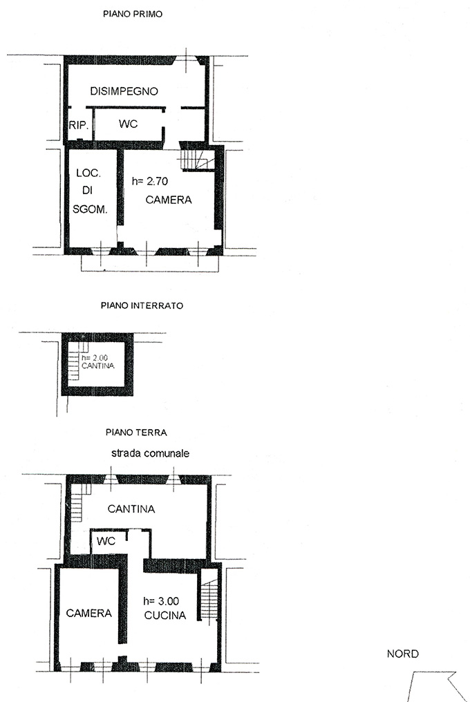
Proponiamo porzione di cascina ubicata nel verde delle colline del Monferrato in piccola e tranquilla borgata con cortile e terreno adiacente che formano circa 3.000 mq. complessivi, nello specifico composta da parte abitativa con al piano terra zona giorno di: ingresso living su ampia cucina con caratteristiche volte, soggiorno (eventuale camera), disimpegno, bagno e vano cantina; salendo al piano primo con accesso da scala interna in muratura abbiamo due camere da letto comunicanti, 2^ bagno, disimpegno a nudo tetto, ripostiglio e balcone con affaccio sul cortile; scendendo al piano interrato troviamo un'ulteriore vano cantina (mq. tot. 120). Fronte casa oltre il cortile completano la proprietà le pertinenze quali tettoia e locale deposito. Il riscaldamento è autonomo con termosifoni alimentati da caldaia a condensazione di recente istallazione. Classe energetica in fase di definizione.



























