cod. 007 – €. 19.000

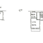
Casa centro paese recentemente rinnovata disposta su 2 piani: si compone al piano terra di ingresso su ampio vano con ulteriore sottoscala (eventuale ripostiglio); salendo al piano primo troviamo l'appartamento composto da: disimpegno, soggiorno con cucina a vista con affaccio su balcone, camera da letto e bagno (mq. tot. 65). Il riscaldamento è autonomo con termoconvettori a metano. Nel prezzo viene compreso anche il mobilio. Classe energetica G.
Viste Esterne
Interni
Planimetrie
18 Dicembre 2025
No Comments













